// Wingetts - Estate Agents - Auctioneers, Commercial & Residential Lettings Belgrave Court, Johnstown, Wrexham – My blog

WREXHAM
Call 01978 353553 
admin@wingetts.co.uk

LLANGOLLEN
Call 01978 861366 
llangollen@wingetts.co.uk

For Sale 3 Bed House - semi-detached 

Belgrave Court, Johnstown, Wrexham Price £225,000

Property Features

Location:
Heol Offa, Johnstown, Wrexham, Clwyd, LL14 2BA
Reception Rooms:2
Bedrooms:3
Bathrooms:1

Contact Agent

Wrexham
29 Holt Street
Wrexham
LL13 8DH
Tel: 01978 353553
sales@wingetts.co.uk

About the Property

Belgrave Court is a select development of just ten 3 and 4 bedroom homes conveniently located in the village of Johnstown close to an excellent range of amenities. Built by well established local builders Gower Homes. NHBC 10 YEAR WARRANTY. HELP TO BUY.

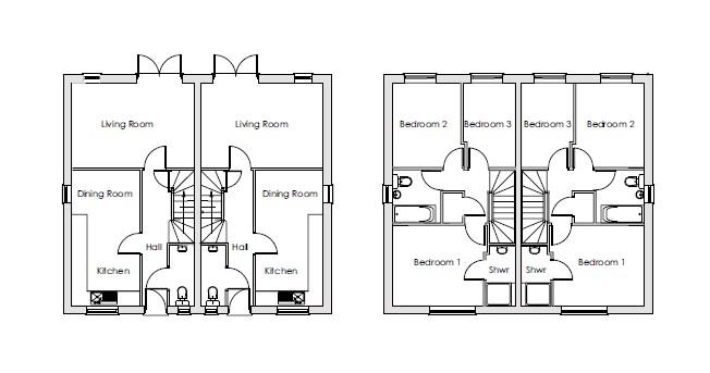
An attractive 3 bedroom semi – detached home within the Gower Homes portfolio offering energy efficient and stylish accommodation. Located within the small development, ‘The Ewloe’ briefly comprises a canopy entrance porch, welcoming hall with staircase to 1st floor landing and cloaks/w.c., living room with French doors opening into the rear garden and a well appointed fitted kitchen dining room. The 1st floor landing with useful storage leads to the 3 bedrooms, bedroom 1 having the luxury of an en-suite shower room and a family bathroom. Externally, a private drive offers parking and gardens wills extend to the front and rear.

  • Brand new
  • Attractive semi detached house
  • Built by Gower Homes
  • Close to amenities
  • NHBC 10 YEAR WARRANTY

Property Photos

Property Details

LOCATION

The village of Johnstown is situated approx. 4 miles from Wrexham town centre conveniently located just a short drive from the A483 by Pass which allows for easy commuting to the Wrexham Industrial Estate, Chester Business Park and Technology Park. The neighbouring village of Ruabon has the benefit of a Train Station, and a regular bus service operates into Wrexham, Llangollen and Oswestry. The village has a well regarded Primary School and there are a choice of Secondary Schools within the catchment. There are shopping facilities, social amenities, Chemist, doctors and dentists all within walking distance.

DIRECTIONS

Proceed along the A483 By Pass from Wrexham in a Southerly direction for approx. 2 miles taking the exit signposted Rhosllanerchrugog. At the roundabout take the 3rd exit and continue through Pentre Bychan into Johnstown. Continue through the 2 sets of traffic lights and after a short distance Belgrave Court will be observed on your left.

ACCOMMODATION

ON THE GROUND FLOOR

HALLWAY

LOUNGE

4.75m x 3.25m (15'7" x 10'8" )

KITCHEN/DINING ROOM

5.28m x 2.59m (17'4" x 8'6" )

ON THE FIRST FLOOR

BEDROOM ONE

3.51m x 3.10m (11'6" x 10'2" )

BEDROOM TWO

3.25m x 2.59m (10'8" x 8'6" )

BEDROOM THREE

3.25m x 2.01m (10'8 x 6'7" )

BATHROOM

Floorplans

Location Map

Open in Google Maps

Enquire / Book Viewing

Contacting Wrexham
29 Holt Street
Wrexham
LL13 8DH
Tel: 01978 353553
sales@wingetts.co.uk
  • arrange a viewing
  • arrange a valuation
  • be sent further property details
  • register for property updates

Contact Details: